Advanced Search
Your search results

3 Bedroom Terraced House To Rent in Turpins Lane, Woodford Green, IG8

£2,400 pcm
Property to let in
Turpins Lane, Woodford Green, IG8 8AZ View other properties
Let Agreed

Property Description

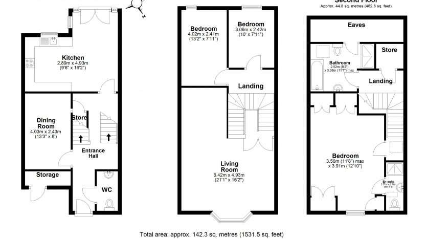
Set within the highly sought-after area of Woodford Green, this beautifully presented three-bedroom home offers spacious and versatile accommodation arranged across three floors — ideal for modern family living.

The ground floor features a separate contemporary kitchen with direct access to the rear garden, perfect for indoor–outdoor entertaining. A formal dining room provides an elegant setting for family meals and gatherings, alongside the convenience of a ground floor W/C.

The first floor boasts a generous living room filled with natural light, creating a welcoming and comfortable space to relax. This level also offers two well-proportioned bedrooms.

Occupying the top floor is the impressive principal bedroom complete with its own en-suite shower room, in addition to a modern family bathroom, offering both privacy and practicality.

The property is presented in modern condition throughout, making it an ideal home for any family.

Address: Turpins Lane
Postcode: IG8 8AZ
Open In Google Maps
Property Id : 1cd63d84-a42e-4a67-9f96-60a6b3397dbf
No. of Bathrooms: 2
Price: £2,400 pcm
Property Style: Terraced House
No. of Receptions: 2
No. of Bedrooms: 3
Three Bedrooms
Arranged Over Three Floors
Separate Modern Kitchen
Formal Dining Room
Principal Bedroom with En-Suite
Excellent Woodford Green Location
External Storage
My details

Contact Me

Schedule a showing?
Call Us Book a viewing

Compare Listings